Bureaux à louer - 183m² - TOULOUSE SUD
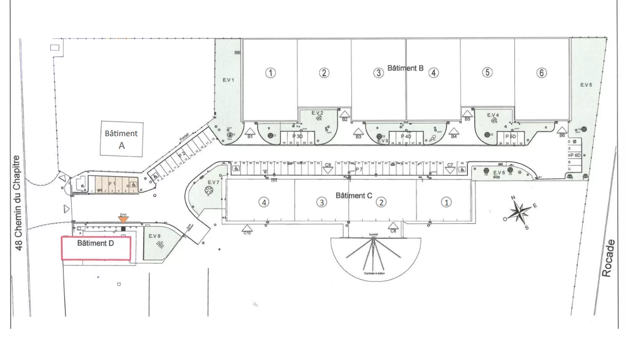
48, Chemin du chapitre
31100 Toulouse
Surface de 183 m² à 183 m²
À louer 21 600,00 € HT/HC/an
Soit 1 800,00 € HT/HC/mois
Soit 118,03 € HT/HC/m²/an
Disponibilité Immédiate !
Accès : Autoroute A64 – sortie 38 Saint-Simon
À 2 minutes du périphérique Ouest (route d’Espagne et route de Seysses)
Télécharger la fiche descriptive
PDF
À 2 minutes du périphérique Ouest (route d’Espagne et route de Seysses)
Vous avez un projet ? Échangeons sur vos besoins
Nous contacter
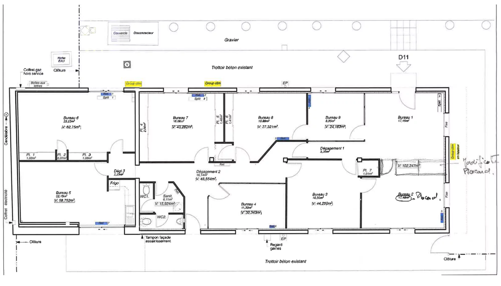
NKI ENTREPRISES vous propose à la location des bureaux de 183m² prêts à l’emploi, idéalement situés au sud de Toulouse, dans la zone d'activités du Chapitre, sur un parc immobilier sécurisé et clos par portail automatique.
Ensemble de 9 bureaux cloisonnés et climatisés
Espaces câblés, prêts à accueillir vos équipes
2 sanitaires privatifs
Site sécurisé sous vidéosurveillance
7 places de parking disponibles
Pour plus d'informations, vous pouvez contacter NKI ENTREPRISES au 0783380386 ou consulter notre site : www.nki-entreprises.fr
Ensemble de 9 bureaux cloisonnés et climatisés
Espaces câblés, prêts à accueillir vos équipes
2 sanitaires privatifs
Site sécurisé sous vidéosurveillance
7 places de parking disponibles
Pour plus d'informations, vous pouvez contacter NKI ENTREPRISES au 0783380386 ou consulter notre site : www.nki-entreprises.fr
Lot
Bât / Étage
Park.
Dispo
Prix
Loyer €/HT/an
Type
Surface
Commentaire
BUREAUX
D / RDC
6
21/08/2025
-
1 800 €
Bureau
183 m²
-
Trouvez la surface adaptée à votre activité
Organiser une visite
Rencontrons-nous et discutons ensemble de votre projet
Prendre rendez-vous
Ajouter aux contacts