Vente terrain industriel 10590m² – Lespinasse – Zone d’activités
RUE DE L'EUROPE
31150 Lespinasse
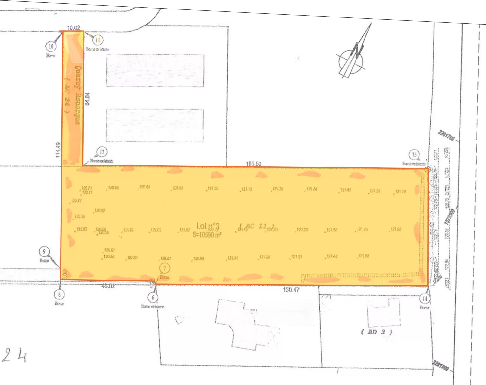
Surface de 10 590 m²
À vendre 1 694 400,00 €
Disponibilité Immédiate !
Accès : Aéroport Toulouse-Blagnac à 13,2 km via la D63
Route de Paris : Accès immédiat
Autoroute A 62 : sortie "Saint-Jory" à 5 minutes
Télécharger la fiche descriptive
PDF
Route de Paris : Accès immédiat
Autoroute A 62 : sortie "Saint-Jory" à 5 minutes
Vous avez un projet ? Échangeons sur vos besoins
Nous contacter
Au cœur du pôle économique du Nord Toulousain, NKI ENTREPRISES vous propose à la vente un terrain industriel de 10590m² bénéficiant d'une situation géographique privilégiée.
Situé en zone UFb, ce foncier profite d'une accessibilité immédiate à l'autoroute A62 (échangeur de Saint-Jory) et d'une connexion directe à la route de Paris.
Le terrain, nu et libre de toute construction dispose d'une forme rectangulaire de 176 mètres de long sur 58 mètres de large.
Coefficient d'emprise au sol : 60%
Hauteur autorisée : 7m sous sablière
Constructions possibles : Locaux d'activités, bureaux ou entrepôts logistiques.
Pour toutes informations complémentaires, contactez NKI ENTREPRISES au 07 83 38 03 86 ou rendez-vous sur www.nki-entreprises.fr
Situé en zone UFb, ce foncier profite d'une accessibilité immédiate à l'autoroute A62 (échangeur de Saint-Jory) et d'une connexion directe à la route de Paris.
Le terrain, nu et libre de toute construction dispose d'une forme rectangulaire de 176 mètres de long sur 58 mètres de large.
Coefficient d'emprise au sol : 60%
Hauteur autorisée : 7m sous sablière
Constructions possibles : Locaux d'activités, bureaux ou entrepôts logistiques.
Pour toutes informations complémentaires, contactez NKI ENTREPRISES au 07 83 38 03 86 ou rendez-vous sur www.nki-entreprises.fr
Lot
Bât / Étage
Park.
Dispo
Prix
Loyer €/HT/an
Type
Surface
Commentaire
Terrain
1 / RDC
100
01/01/2025
1 694 400 €
-
Terrain
10 590 m²
-
Trouvez la surface adaptée à votre activité
Organiser une visite
Ajouter aux contacts